Lumineux T3 avec terrasse – Carcassonne, confort et sérénité


< Retour

Partager sur

gallery loader
Exclusivité Coup de coeur

Appartement 54.2 m² - 3 Pièces - Carcassonne 75 000


Description de l'offre Ref VAP199T


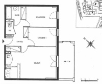
Dans un quartier paisible et recherché de Carcassonne, découvrez ce bel appartement de 54 m² aux volumes bien pensés et à l’atmosphère chaleureuse. Son esprit contemporain et sa terrasse ensoleillée en font un lieu de vie idéal pour un premier achat, un pied-à-terre ou un investissement locatif sûr. L’espace de vie principal séduit par sa pièce à vivre ouverte de plus de 23 m², où cuisine américaine et salon se fondent dans un ensemble convivial, baigné de lumière naturelle. Côté nuit, deux chambres confortables avec rangements assurent calme et intimité. Une salle de bain fonctionnelle, un WC séparé et un hall d’entrée équipé d’un grand placard complètent l’ensemble avec praticité. À l’extérieur, la terrasse de 9 m² prolonge agréablement la pièce de vie — un parfait espace pour vos petits-déjeuners au soleil ou vos soirées d’été entre amis. La résidence est bien entretenue, avec de faibles charges et un cadre agréable. Copropriété sérieuse, pas de plan de sauvegarde, quote-part annuelle : 1075 €. Zone soumise à une obligation légale de débroussaillement. Les informations sur les risques auxquels ce bien est exposé sont disponibles sur le site Géorisques

Diagnostics de performance énergétique


DPE
DPE
DPE en cours

Descriptif du bien


Code postal 11000


Surface habitable (m²) 54,20 m²


Surface loi Carrez (m²) 54,20 m²


Nombre de chambre(s) 2


Nombre de pièces 3


Etage 2


Ascenseur NON


Vue vue sur des champs


Nb de salle de bains 1


Cuisine AMERICAINE


Mode de chauffage Electrique


Type de chauffage Convecteur


Format de chauffage Individuel


Interphone OUI


Visiophone NON


Balcon NON


Terrasse OUI


Murs mitoyens 2


Cave NON


Nombre de parking 1


Exposition SUD-EST


Année de construction 2007


Copropriété OUI


Lot n° 1098


nombre de lots 159


Quote Part annuelle des charges 1 075 €


plan de sauvegarde NON


statut du syndic pas de procédure en cours


Prix de vente 75 000 €


Les honoraires d'agence seront intégralement à la charge du vendeur  


Charges 90 €


Taxe foncière annuelle 1 466 €


Cette annonce vous intéresse ?


* Champs obligatoires

* : Les informations recueillies sur ce formulaire sont enregistrées dans un fichier informatisé par La Boite Immo agissant comme Sous-traitant du traitement pour la gestion de la clientèle/prospects de l'Agence / du Réseau qui reste Responsable du Traitement de vos Données personnelles. La base légale du traitement repose sur l'intérêt légitime de l'Agence / du Réseau. Elles sont conservées jusqu'à demande de suppression et sont destinées à l'Agence / au Réseau. Conformément à la loi « informatique et libertés », vous disposez des droits d’accès, de rectification, d’effacement, d’opposition, de limitation et de portabilité de vos données. Vous pouvez retirer votre consentement à tout moment en contactant directement l’Agence / Le Réseau. Consultez le site https://cnil.fr/fr pour plus d’informations sur vos droits. Si vous estimez, après avoir contacté l'Agence / le Réseau, que vos droits « Informatique et Libertés » ne sont pas respectés, vous pouvez adresser une réclamation à la CNIL. Nous vous informons de l’existence de la liste d'opposition au démarchage téléphonique « Bloctel », sur laquelle vous pouvez vous inscrire ici : https://www.bloctel.gouv.fr Dans le cadre de la protection des Données personnelles, nous vous invitons à ne pas inscrire de Données sensibles dans le champ de saisie libre.
Ce site est protégé par reCAPTCHA, les Politiques de Confidentialité et les Conditions d'Utilisation de Google s'appliquent.

autres annonces immobilières correspondant à votre recherche

Les biens similaires pour : Vente Appartement Carcassonne (11000)