

Partager sur
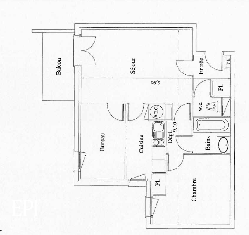
Situé à Berriac, cet appartement de 52 m² offre un cadre de vie pratique et agréable, idéal pour une personne seule ou un couple recherchant confort et tranquillité. Dès l’entrée, un hall équipé d’un placard permet un rangement facile et organisé. Le séjour lumineux de 18 m² avec climatisation réversible, ouvrant sur un balcon, constitue un véritable espace de détente où l’on profite de la clarté naturelle et d’une atmosphère chaleureuse. La cuisine fonctionnelle est parfaitement adaptée pour préparer ses repas au quotidien, et la chambre avec placard intégré assure confort et praticité. Un bureau de 7 m² peut être utilisé comme espace de lecture, de couture, de télétravail ou de chambre d’appoint. La salle de bain et les toilettes séparées facilitent la vie de tous les jours, tandis que la distribution de l’appartement (dégagement, rangements) garantit une circulation fluide et agréable. Une place de parking privative + places invités. Résidence sereine, sans services superflus, Portail pilotage intratone. La copropriété est bien entretenue, avec des charges annuelles maîtrisées (environ 90 €/mois) et une fiscalité foncière raisonnable (800 € par an). Un appartement et un lieu de vie agréables à taille humaine, confortable et facile à vivre, idéal pour profiter sereinement de son temps libre tout en restant proche des commodités : Zone commerciale, autoroute, Hopital ...
Code postal 11000
Surface habitable (m²) 52 m²
Surface loi Carrez (m²) 51,62 m²
Nombre de chambre(s) 2
Nombre de pièces 3
Nombre de niveaux 1
Ascenseur NON
Nb de salle de bains 1
Cuisine SEPAREE
Type de cuisine SEMI-EQUIPEE
Mode de chauffage Climatisation, Electrique
Type de chauffage Air pulsé, Convecteur
Format de chauffage Individuel, Individuel
Interphone OUI
Visiophone NON
Balcon OUI
Cave NON
Exposition NORD
Année de construction 2005
Copropriété OUI
Lot n° 04
nombre de lots 72
Quote Part annuelle des charges 1 077,48 €
plan de sauvegarde NON
statut du syndic pas de procédure en cours
Prix de vente 70 000 €
Les honoraires d'agence seront intégralement à la charge du vendeur
Charges 90 €
Taxe foncière annuelle 800 €
* : Les informations recueillies sur ce formulaire sont enregistrées dans un fichier informatisé par La Boite Immo agissant comme Sous-traitant du traitement pour la gestion de la clientèle/prospects de l'Agence / du Réseau qui reste Responsable du Traitement de vos Données personnelles.
La base légale du traitement repose sur l’intérêt légitime de l'Agence / du Réseau.
Elles sont conservées jusqu'à demande de suppression et sont destinées à l'Agence / au Réseau.
Conformément à la loi « informatique et libertés », vous pouvez exercer votre droit d'accès aux données vous concernant et les faire rectifier en contactant l'Agence / le Réseau.
Si vous estimez, après avoir contacté l'Agence / le Réseau, que vos droits « Informatique et Libertés » ne sont pas respectés, vous pouvez adresser une réclamation à la CNIL.
Nous vous informons de l’existence de la liste d'opposition au démarchage téléphonique « Bloctel », sur laquelle vous pouvez vous inscrire ici : https://www.bloctel.gouv.fr
Dans le cadre de la protection des Données personnelles, nous vous invitons à ne pas inscrire de Données sensibles dans le champ de saisie libre
Ce site est protégé par reCAPTCHA, les Politiques de Confidentialité et les Conditions d'Utilisation de Google s'appliquent.